
Komerční nemovitost 750 m², Broumov
BÝVALÁ "TANČÍRNA" V CENTRU MĚSTA
BÝVALÁ "TANČÍRNA" V CENTRU MĚSTA
Výjimečná historická budova k celkové rekonstrukci – centrum Broumova, čtvrť Poříčí
Nabízíme k prodeji unikátní nemovitost s bohatou historií, která se nachází přímo v centru Broumova, ve vyhledávané čtvrti Poříčí. Objekt s užitnou plochou cca 750 m² ve dvou nadzemních podlažích a členitým suterénem pod celou budovou nabízí mimořádný potenciál pro široké spektrum využití.
Historie a architektura
Budova byla postavena roku 1911 jako hostinec, v roce 1934 pak dle projektu architekta Huberta Meiera upravena na modlitebnu. Nachází se v památkové zóně a její secesní uliční průčelí s působivými vitrážemi a architektonickými detaily dodává objektu jedinečný charakter.
Dispozice a prostory
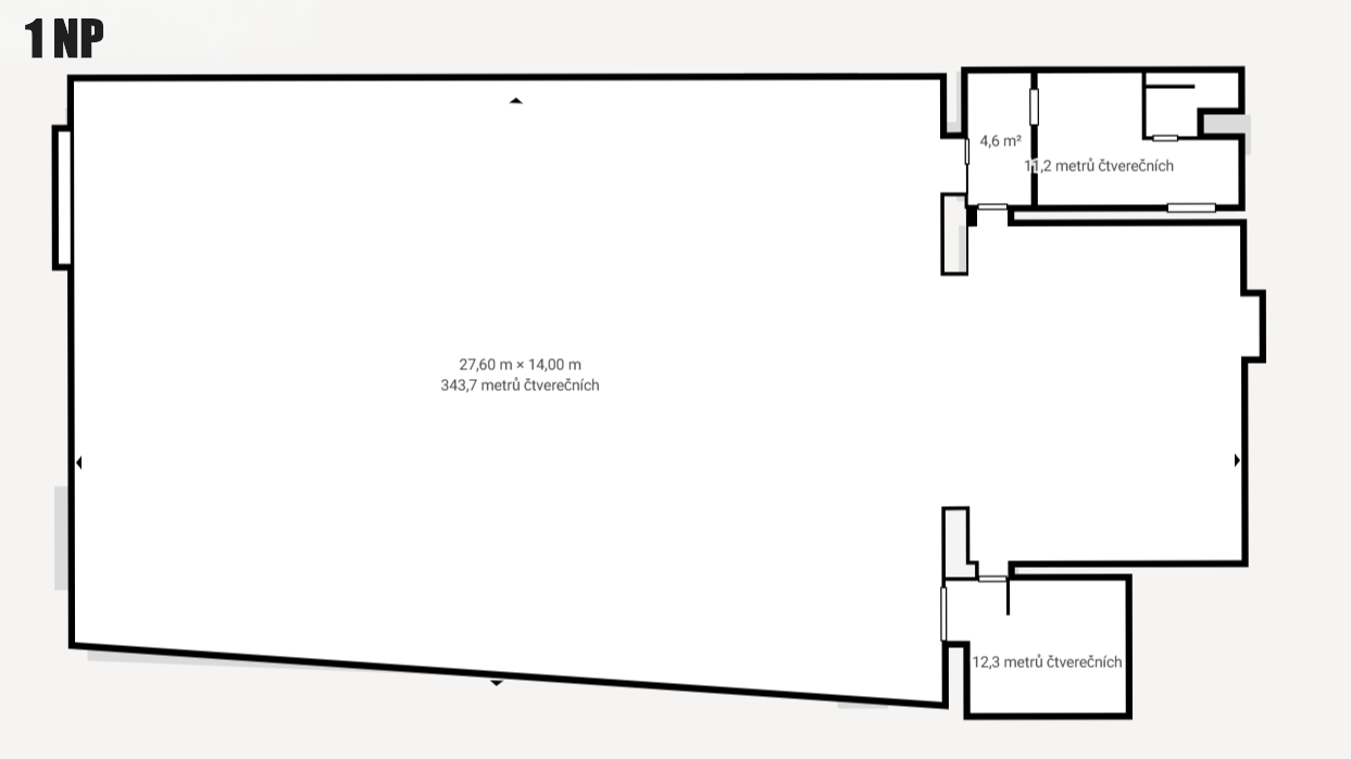
- 1. patro 387 m2 : velký sál s podiem, ideální pro kulturní, společenské či komunitní využití
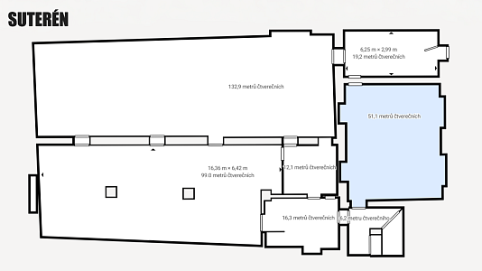
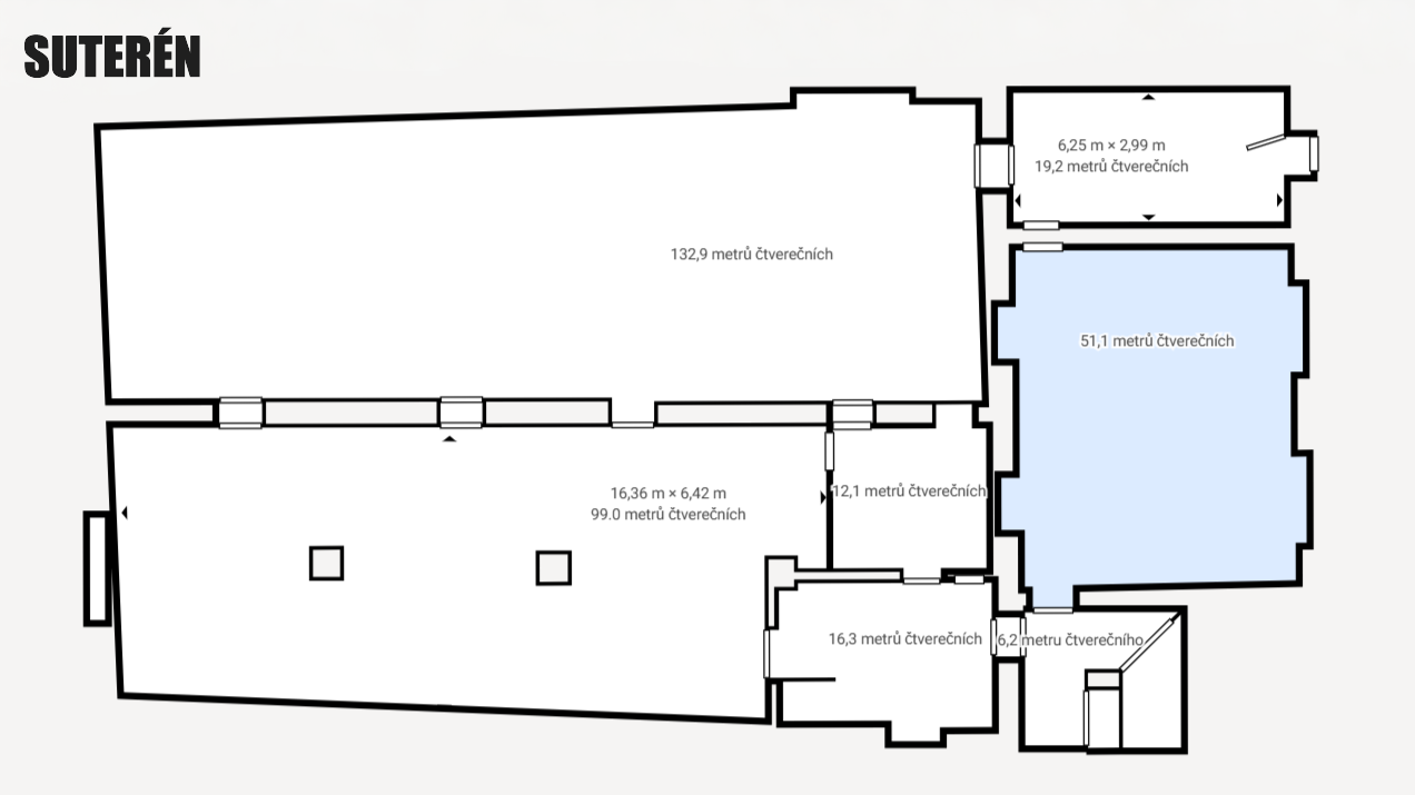
- suterén 363 m2 : rozsáhlé členité prostory s možností adaptace, část s okny orientovanými do zahrady (331 m²)
- dvůr a zahrada: lichoběžníkový pozemek s 331 m2, přirozené propojení interiéru se zelení
- interiér je tvořen velkorysými sálovými prostory, menším sálem a vřetenovým schodištěm v zadní části budovy
Výhody lokality
- atraktivní poloha v centru Broumova, v docházkové vzdálenosti veškeré občanské vybavenosti
- město Broumov je známé svou historií, kulturním dědictvím a krásnou okolní přírodou Broumovska
- umístění v památkové zóně podtrhuje prestiž a historickou hodnotu objektu
Pro koho je nemovitost vhodná?
Budova je určena ke kompletní rekonstrukci a nabízí mimořádný prostor pro investory s vizí – vhodné pro kulturní centrum, ateliéry, galerii, kavárnu, školící či vzdělávací zařízení, nebo originální bydlení spojené s podnikáním.
Jmenuji se Jaroslav Bureš a jsem realitní makléř z Liberce.
Jsem členem ERS Reality, silné realitní společnosti, která mi kryje záda a zajišťuje profesionální zázemí. Díky tomu vám mohu nabídnout jistotu, právní servis a podporu, na které se můžete spolehnout.
Za sebou mám už mnoho úspěšných prodejů a hlavně spokojené klienty, na kterých mi nejvíc záleží.
Nejsem jen „makléř“ – jsem partner, který vám naslouchá, stojí při vás a provede vás celým procesem. Od prvního kontaktu až po předání klíčů se můžete spolehnout na férový a lidský přístup.
Těším se až společně dokážeme velké věci.