
Hledáte domov, kde se spojuje klid přírody s výhodami města? Pak právě pro vás nabízíme k prodeji tento rodinný dům se zahradou o rozloze 656 m², který se nachází v malebné Raspenavě, jen pár kroků od vodního toku. Místo, kde vás ráno probudí zpěv ptáků a šumění vody, a přesto máte v docházkové vzdálenosti školku, školu i vlakové nádraží.
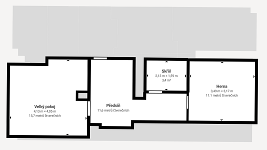
Dům o zastavěné ploše 116 m² prošel v posledních letech rozsáhlými rekonstrukcemi, které mu dodaly nový komfort a zároveň zachovaly kouzlo staršího bydlení:
• před 2 lety nově zateplený interiér se sádrokartonovými obklady a štuky, kompletní nové topení (rozvody, topná tělesa, krbová kamna, kotel na tuhá paliva), nové komíny, rozvody vody, rozvody el. energie, kuchyňská linka, bojler i podlahy, rozvod pevného internetu po celém domě.
• před 7 lety zateplení a obložení podkroví,
• před 10 lety výměna oken za plastová.
Na zahradě si můžete užívat klidné chvíle s rodinou či přáteli, prostor nabízí místo pro posezení, zahradničení i hry dětí. K dispozici je také větší plechová garáž.
Inženýrské sítě a vybavení:
• voda z veřejného vodovodu (na pozemku i studna),
• odpady řešeny septikem s možností napojení na veřejnou kanalizaci,
• na hranici pozemku HUP.
Interiér domu je již modernizovaný a připravený k nastěhování. Vnější část domu čeká na finální úpravy dle vašich představ, přičemž využití dostupných dotačních programů vám může výrazně snížit náklady.. Díky tomu si můžete dům přizpůsobit přesně podle svých představ a zároveň ušetřit nemalé prostředky.
Samozřejmostí je naše pomoc s financováním nemovitosti – rádi vám poradíme a zajistíme nejvýhodnější řešení.
Tento dům je ideální pro ty, kteří hledají příjemné rodinné bydlení obklopené přírodou, a zároveň chtějí mít po ruce veškerou občanskou vybavenost.
Jmenuji se Jaroslav Bureš a jsem realitní makléř z Liberce.
Jsem členem ERS Reality, silné realitní společnosti, která mi kryje záda a zajišťuje profesionální zázemí. Díky tomu vám mohu nabídnout jistotu, právní servis a podporu, na které se můžete spolehnout.
Za sebou mám už mnoho úspěšných prodejů a hlavně spokojené klienty, na kterých mi nejvíc záleží.
Nejsem jen „makléř“ – jsem partner, který vám naslouchá, stojí při vás a provede vás celým procesem. Od prvního kontaktu až po předání klíčů se můžete spolehnout na férový a lidský přístup.
Těším se až společně dokážeme velké věci.